ATTICO CON TERRAZZO
CAVARIA Luce, spazio e panorama: Attico ristrutturato con terrazzo Se…
€228.000
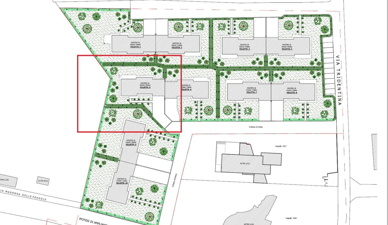
31,Via Tridentina, Moncone, Cuoricino, Cardano al Campo, Varese, Lombardia, 21010, Italia
In vendita
€500.000







CARDANO AL CAMPO
Sogni di realizzare la tua casa in una delle zone più esclusive e riservate?
Questa villa di design rappresenta un’opportunità unica, dove eleganza, comfort e tecnologia si incontrano in perfetta armonia.
La posizione è strategica, un’oasi di privacy, senza rinunciare alla comodità: al confine con Gallarate, vicina ai principali servizi, all’aeroporto di Milano Malpensa, ai rinomati laghi lombardi e comodamente collegata a Milano.
La villa di alto standing, in classe energetica A4, si distingue per gli spazi ampi e luminosi, il design contemporaneo, finiture di pregio e tecnologie all’avanguardia.
Disposta su un unico livello di 130 mq, la villa offre una zona living ampia e luminosa con cucina, che può essere a vista o separata e abitabile, a seconda delle esigenze.
La zona notte comprende due comode camere, uno studio e due bagni, mentre una pratica lavanderia si trova all’interno del grande box adiacente e collegato all’abitazione.
L’intera proprietà è circondata da un’area verde di circa 300 mq, perfetta per trascorrere momenti di relax e convivialità in totale privacy.
Ogni elemento è curato con attenzione e completamente personalizzabile, per rispondere al meglio a ogni esigenza.
Possibilità di spa e zona living outdoor.
Euro 500.000,00 – chiavi in mano
Contattaci ora per una consulenza personalizzata e per scoprire le altre disponibilità.
CAVARIA Luce, spazio e panorama: Attico ristrutturato con terrazzo Se…
€228.000
CASORATE SEMPIONE In un piccolo contesto tranquillo e immerso nel…
€90.000