AMPIA VILLA INDIPENDENTE CON GIARDINO
GALLARATE In tranquilla zona residenziale, riservata ma comoda per tutti…
€320.000
Piazzale Europa, Centro, Gallarate, Varese, Lombardia, 21013, Italia
In vendita
€175.000











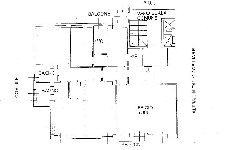
GALLARATE CENTRO – UFFICIO AD USO INVESTIMENTO
Nel centro di Gallarate, a pochi passi dalla stazione ferroviaria e nelle immediate vicinanze dell’autostrada A8, di fronte all’autosilo che ne agevola il parcheggio, proponiamo in vendita UFFICIO AD USO INVESTIMENTO. La “residenza Europa” è degli anni 70 ma grazie alle costanti manutenzioni è in buone condizioni ed essendo un complesso formato da numerosi uffici oltre che ad abitazioni è perfetta per attività di carattere commerciale. L’immobile di circa 180 mq è situato al 2° piano, è composto da sei locali, ripostiglio, tre bagni ed un balcone oltre a cantina. Possibilità di acquistare un box auto al piano interrato ad € 15.000,00. L’ufficio si presenta in ordine con ambienti luminosi, tutti serviti da aria condizionata e cablati.
L’immobile attualmente è affittato ad un canone che garantisce una rendita superiore al 7%.
In fase di certificazione energetica.
GALLARATE In tranquilla zona residenziale, riservata ma comoda per tutti…
€320.000
ISPRA Vendesi Attività di Poliambulatorio Medico a Ispra (VA) –…
€390.000